
Projects
History
Employees
Jobs@JMB
These are a few of our projects that we have accomplished. They have all won awards for "Best Architectual Building of the Year", and we think they deserve it!
Our first major project was building some vacation home in the tropical state of Florida.



This next picture is our biggest accomplishment. A reconstruction of a 15th Century castle that is currently being used as The National Museum of Britian.

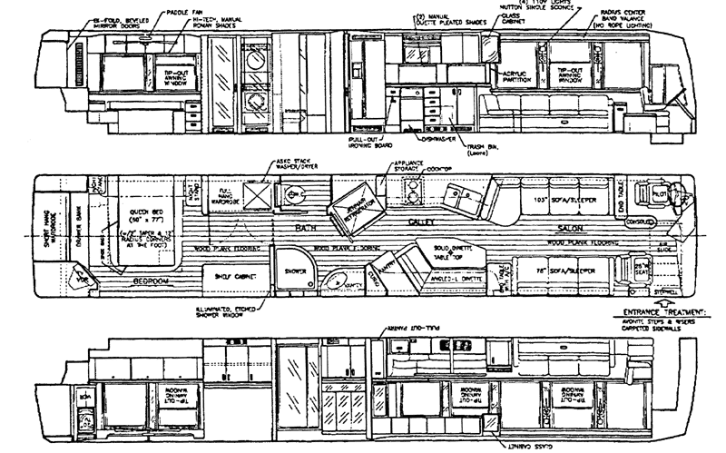
This is our current project at the moment. A luxury coach that is can be used for long business trips or simply vacationing around the country.

