Site hosted by Angelfire.com: Build your free website today!

The Page Begins Here

Mill Restoration Principles





Drawing from John Vince's book "Watermills and How They Work."

Mill Restoration Principles

A worthy building deserves careful and sympathetic maintenance to keep out the weather and to guard against other deteriorating factors. When parts wear out they should be promptly replaced in kind, thus preserving the architectural character. But few buildings are so favored. When their design goes out of fashion and equipment becomes worn or obsolete they usually fall into a state of neglect or even abandonment. If fortunate, they may be able to remain standing until the cycle of taste again allows them to be recognized as assets. When maintenance has failed or some other misfortune has caused the loss of original parts the process of restoration must be invoked to recapture the character with which the building was formerly endowed. At that time it is usually necessary to strengthen the old fabric, and to add as little of such conveniences as may be needed for modern usage and required by state and federal guidelines.

The motives governing preservation and restoration are several aesthetic, archaeological, scientific, historical, and educational. Educational motives often suggest complete reconstruction, as in their heyday, of vanished, ruined or remodeled buildings and remains. This is often been regarded as requiring removal of subsequent additions, and has involved incidental destruction of much archaeological and historical evidence, as well as of aesthetic values arising from age and picturesqueness. The demands of scholarship for the preservation of every vestige of architectural and archaeological evidence desirable in itself might, if rigidly satisfied, leave the monument in a condition which gives the public little idea of its major historical aspect or importance. Anesthetically, the claims of unity or original form or intention, of variety of style in successive periods of buildings and remodeling, and of present beauty of texture and weathering may not always be wholly compatible. Unless documented evidence exists to return a structure to an original period we should not loose all of the successive periods of history and changes to a building to recreate the unknown.




The Old Red Mill a.k.a. Hutchison or Jericho Mill, Jericho Corners, Vermont
This New England historic landmark was built in 1855,
it operated as a commerical flour mill until 1904.
Then it became a feed store. It later became a service station,
and is now run by the Jericho Historical Society.
When a community thinks they can no longer support an operating flour mill
the structure, if lucky enough often may becomes a victum of adaptive use.

In attempting to reconcile these claims and motives, the ultimate guide must be the informed and experienced judgment of those in charge. Certain principles and guidelines should, however, be followed.

1. The restoration of historic buildings requires the professional knowledge of special skill of architects, historians, archaeologists, landscape architects, museum people, and experienced craftsman.

The restoration of an historical mill structure and machinery requires the professional knowledge of Millwrights-engineers, milling consultants, molinologists, and millers. The so-called mill buff, historian, college professor, and writer, architect, administrator, and individuals remembering the mill being in operation may in fact know very little about its actual operations, the idenification of the name of parts, and changes over successive periods. In other words, they may not have the practical experience to be termed a "mill expert." However some of these individuals may have the final say or signature about what is done in the restoration. So build your bridges rather than burn them.

2. No final decision should be taken as to a course of action before reasonable efforts have been made to exhaust the archaeological and documentary evidence as to the form and successive transformations of the monument. Complete record of such evidence, by drawings, photographs, notes and transcripts should be kept, and originals or copies made available to students in appropriate central libraries and where possible also published. In no case should evidence offered by the monument itself be destroyed or covered up before it has been fully recorded. Sample specimens of physical evidence should also be preserved. All changes proposed should also be preserved. All changes proposed should be studied in drawings and specification form to insure thorough communication between laymen, architect, and constructor.

Other examples should be found of the same period as the restoration that have not been restored and are found in their original state. Very few if any, mills have been restored as they were originally because that evidence does not exit to do a complete restoration, other machinery even though of the same period but different style or design has been added in replacement of the original, or it was just laid out completely wrong.

3. In treating surviving old buildings, generally speaking it is "better to preserve than repair, better to repair than to restore, better to restore than to reconstruct." It is also well, before initiating a project, to consider carefuly the possibility that once started it may lead to "creeping reconstruction" the tendency for repair to lead to restoration and for restoration to become, by degrees, total reconstruction.

The problems with mills is if you want an restoration and operation, you have to remove and replace some of the original fabric, such as the water wheel, gearing and millstones and other moving parts. You cannot have both. Water wheels, gearing, millstones and other machinery have life spans and if you must retain the original then you do not have an operating mill but a static exhibit. This is where the term is used, "replace in kind," just like the millwright and miller would have done when it was a real operating mill. Replace with new for the sake of operation, safety, production and today demonstration.

4. It is ordinarily better to retain genuine old work of several periods, rather than arbitrarily to "restore" the whole, by new work, to its aspect at a single period. This applies to work of periods later than those now admired, provided it represents a genuine creative effort. or is a part of the life history of the building. In no case should our own artistic preferences or prejudices lead us to modify, an aesthetic grounds, work of a bygone period representing other artistic tastes. Truth is not only stranger than fiction, but more varied and more interesting. It should be recognized, however, that sometimes it is essential to remove later work in order to obtain evidence of the structure pertaining to an earlier and more important period. No surviving old work should be removed or rebuilt for structural reasons if any reasonable additional trouble and expense would suffice to preserve it.

There have been good and bad mill restorations. Sometimes later restorations were done for the sake of "make do," and done not by so-called experts and done by in-house workers or volunteers. Before an earlier restoration is removed all efforts should be explored to find the documentation of how, why and the reasons why they did what they did. A good example of this is the 1941 restoration of Upper Mills at Philipsburg Manor by the Fitz Water Wheel Company, it looks much more like the original mill in drawings and old photographs than the later restoration that spent at least 10 years doing archaeological digging to find the original location and dimensions of the mill and dam. The stuff on the surface now appears to be much different than before. The money was there and the powers to be, made it happen.

5. Every reasonable additional care and expense is justified to approximate in new work the materials, methods and quality of old construction, but new work should be permanently identified and great discretion should be used in simulating old materials with modern materials. If old materials from other buildings are used in a restoration their source and use should be permanently recorded. The use in an appropriate manner of old materials and details of the period and character is commendable when such materials are otherwise doomed to loss or destruction and their use in itself is an act of preservation. n securing materials for restoration work there should be no demolition or removal of buildings where there is a reasonable prospect that they will persist intact or as historic ruins on their own site. Where missing features are to be replaced without sufficient evidence as to their own original form, careful study should be made of other surviving examples of the period and region and precedents found for the replacement.

No two mills were ever built alike. Trying to recreate a mill with no evidence is like trying to recreated a dead person's fingerprints without them ever had their fingerprints made or an article that they touched remained. Mills were build for different products and to produce different amounts of material. No two mill sites are the same the fall and layout of the are different in each case. Originally a millwright who builds lets say stone mills of a similar design would make improvements and modifications with each new successive mill building he constructed.

6. The nature of preservation and restoration work in such that it generally involves more time than would be expected in new construction and what it may have taken originally to build in the first place. Many of the most important problems, are unsuspected until the fabric is opened up.

7. When for educational or preservation purposes it is deemed necessary to remove a building to a new setting, its restoration should be guided by sound restoration principles as indicated above. In many cases, if buildings are moved to a new setting it is recreation more than true restoration.

8. Complete reconstruction for educational purposes should also follow the same principles that govern restoration. The nature of education and interpretation is not a true recreation of history because they were done without the added feature of the visitor or the public into the mesh of daily operation of the structure.

9. When an historic building survives into modern times, fortunately in its original use, it is important to retain all its principal features with only minor modification for modern usage. When an historical building ceases to be used for its original purpose other uses should be sought in order to perpetuate its life. Only modern uses should be adopted with are consistent with preservation of the building's outstanding values. In such cases, limited compromise with restoration standards may be justified, especially in the interior, to obtain desired conveniences. Since our needs and capabitiles are always growing, important or interesting features that cannot be restored for the moment should be covered over and protected to await future treatment. Only a limited number of exceptional buildings are important enough to be preserved solely for exhibition. These buildings must be cared for and restored with utmost fidelity to the highest restoration standards.

10. Mills make wonderfull mills but perhaps make poor museums and other types of structures. Mills besides providing a food stuff also inspire romance and nostalgic for the past. It may be may peoples dream to one day live in a converted barn or old mill. The problem with old mills is that they are usually in flood plans, they are hard to insulate without changing their original fabric, and for years after the milling operations have stopped bugs and rodents have made the mill their home. Adoptive usage or multiple usage should only come into play when much of the original fabric and machinery have been removed, lost or undocumented. Sometimes it is better to secure a mill structure for another generation to restore than to incorporate it into a modern usage. Mills were never meant to be the center piece of shopping malls, or housing developments. With mills always comes the flooding hazard and the rising and lowering of water levels in a mill pond. Mills also have dams that it seems the building of and maintenance of has become out of fashion it this modern era. If you want a building to severe as a store, home, office, restroom or other use, it may be easier to build a new building using modern standards and materials that simply looks like a mill than loosing another the original structure to the modern era of progress.

There are very few millwright engineers in the United States and Canada who are capable of maintaining an American mill's historical integrity.




Hamer's Mill, Spring Mill State Park, Mitchell, Indiana

The Old Mill at Spring Mill State Park originally built in 1817, Bullitt's Mill and later known as Hamer's Mill. This was the first restored mill open to the public in the 1930's, just before Pierce Mill in Rock Creek Park, in Washington, D.C. The mill is part of the pioneer village at Spring Mill State Park near Mitchell, Indiana. The drawing style looks like it was inspiried from the drawings found in "Flour for Man's Bread, A History of Milling," by John Storck and Walter D. Teague, Minneapolis, University of Minneasota Press, 1952.

This is a wonderful drawing, but the interior of this mill has been restored totally incorrect according to what the drawing shows. Mill gearing was not layed out using the "erector set" approach. In a water mill, the water wheel moves near the ground because of that, that is where the water wheel is located. The shaft comes into the mill and the mill gearing sends the power upward to the millstones and other machinery on the floors above. "Never" would the gearing send the power downward and up again so the millstones could be on the same level as the water wheel shaft.

In the past few years a new mill was constructed in a park elsewhere in Indiana, that also used the same "erector set" approach to the mill gearing. They have had nothing but problems with that mill. They totally misinterpreted the drawings of Oliver Evans in "The Young Mill-Wright and Miller's Guide," about how the sections of gear faces are layered together and the size of the materials that should be used. This is one of the major problems with mill restoration, once something is restored incorrectly it becomes almost impossible to correct it or change it. The restore it "in kind," mentality sets it, and it then become difficutlt to justify changing it to something that is not seen or known.



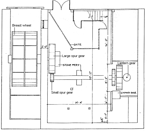
The picture postcard interior of a period grist mill, with its artifacts, and costumes all correct?
The basement of this living history grist mill hides a horrible secret......


Wright's Grist Mill, Old Sturbridge Village, constructed in 1938.
The machinery is from Porter Grist Mill, in Hebron, Connecticut.
The millstones & original waterwheel from Grist Mill, South Egremont, Mass.,
and is powered by a wooden breast shot water wheel.

Why is the above plan of the mill's basement laid out incorrectly? In a grist mill the millstones should always be on the inside wall that the water wheel is directly on the outside. The millstones require 60% of the power that the water wheel generates. For some unknown reason the millstones were placed on the opposite wall away from the water wheel. An additional shaft that would not have been in a mill originally was installed. This mill has had nothing but operational problems since it was constructed and for the most part does not operate. Too much power is lost before it ever gets to the millstones with this "erector set" approach to mill gearing that is totally incorrect. The way the millstones are placed in the mill, they might as well be located in the mill's attic.

This mill has become a picturesque part of the New England landscape with its saltbox shaped roof. The breast shot water wheel was the most common water wheel type used in the United States at the time but they have made the profile of the wheel into a design. They have added two short arms coming from every other one of the water wheel's arms outward to the shroud of the water wheel to create some sort of Pennsylvania Dutch quilt style design that would not have been down on water wheels.

This mill is getting to the point of becoming an historical structure because of its historical recreation but that does not mean it is historically correct. There are a few mill-rights but a lot of mill-wrongs. One of the most common mill-wrongs in the history of mill restoration, is that a water wheel is constructed that is barely large enough to run one pair of millstones, let alone any other additional pairs of millstones at the same time and also to include the secondary machinery within the mill. Successive water wheels at both the John P. Cable Mill in Cades Cove in the Smoky Mountains and Peirce Mill in Rock Creek Park, Washington, D. C., have become smaller over the years. The Cable Mill went from having two pairs of millstones to just one pair, while the Peirce Mill went from four to three to just being barely being able to operate a single pair of millstones. This may be partly do to the lowering of the available water in the mill streams over the last 100 years, but the mills are being restored for demonstration and interpretation rather than production.

Restoration after all, is an Interpretation of the Past,
And Our Understanding of the Past is
Constantly Changing and Evolving.

o Note source material for the text from "Historic Preservation Today," Seminar on Preservation and Restoration, Williamsburg, Virginia, September 1963. The National Trust for Historic Preservation & Colonial Williamsburg, University of Virginia, 1966, and "Black Rock Mill, Restoration Feasibility Study for the State of Maryland Department of Natural Resources," by Vosbeck Vosbeck Kendrick Redinger, Architecture Engineering Planning, Hyattsville, Maryland, 1973.


Return to Home Page

mailto:trhazen@hotmail.com

Copyright 2000 by T. R. Hazen
http://home.earthlink.net/~alstallsmith/index.html