Site hosted by Angelfire.com: Build your free website today!
NAZ

 

Naturwissenschaftliches Arbeitszentrum im Hittorf-Gymnasium

Schülerinnen und Schüler sollen im Unterricht an einer allgemeinbildenden Schule über das Lernen von fachlichen Inhalten und Methoden hinaus durch das Lernen in Zusammenhängen ihren Blick weiten. Dies stiftet den zum Lernen notwendigen Sinn und festigt die Kenntnisse, die sie über die Inhalte des Faches gewonnen haben.

Über die Methoden der Fächer hinaus wird es notwendig sein, Methoden und Formen selbständigen Arbeitens im Unterricht anzubahnen. Dabei sollen Fähigkeiten und Fertigkeiten erworben werden, damit es den Schülerinnen und Schülern zunehmend besser gelingt, Aufgaben selbständig zu strukturieren, Probleme aufzubereiten und auch die entspre­chenden Darstellungsformen selbständigen Lernens wie Referate und Facharbeiten erfolg­reich zu nutzen.

In den Fächern des mathematisch-naturwissenschaftlich-technischen Aufgabenfeldes gehört hierzu auch das Erlernen des selbständigen Experimentierens.

Wenn diese Anforderungen gestellt werden, muß den Schülerinnen und Schülern aber auch die Gelegenheit gegeben werden, unter Anleitung Methoden und Formen selbständigen Arbeitens zu erlernen. Dieser Aufgabe will sich das Naturwissenschaftliche Arbeitszentrum im Hittorf-Gymnasium stellen.

Die Ziele des Naturwissenschaftlichen Arbeitszentrums sind:

  • Den Schülerinnen und Schülern Gelegenheit zu geben, in den naturwissenschaftlichen Fächern selbständig an Aufgaben und Problemen zu arbeiten und ihre Ergebnisse in angemessener Form (z.B. Referat, Facharbeit) zu präsentieren.
  • Den Schülerinnen und Schülern Gelegenheit zu geben, naturwissenschaftliche Experimente selbständig vorzubereiten, durchzuführen und auszuwerten.
  • Den Schülerinnen und Schülern Gelegenheit zu geben, Experimente und Ausarbeitungen für naturwissenschaftlich geprägte Wettbewerbsarbeiten anzufertigen.

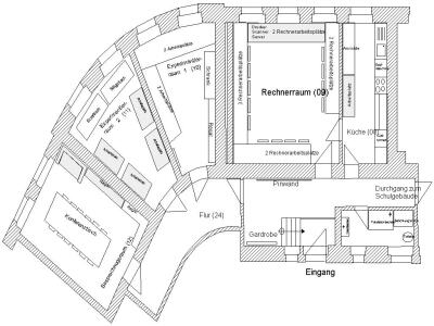
Die Räume für die Arbeit des Naturwissenschaftlichen Arbeitszentrums wurden im Zuge der Bergschädensanierung gerade renoviert. Ein Teil des Inventars wir aus Beständen des STZ übernommen.  Die Aufteilung und Ausstattung der Räume ist in dem nachstehenden Grundriß andeutungsweise erkennbar.

   

In der Küche soll nach wie vor natürlich auch für das leibliche Wohl der Mitarbeiter gesorgt werden können. Sie ist darüber hinaus aber auch der Ort, wo z.B. Experimente aus dem Bereich der Lebensmittelchemie stattfinden. 

Der Rechnerraum ist vorgesehen für die Informationsbeschaffung aus dem Internet und die Dokumentation der Arbeitsergebnisse. Dafür ist er mit 8 internetfähigen Rechnern ausgestattet. Ein Scanner und ein Laserdrucker sind über das interne Netz zu erreichen.

In den beiden Experimentierräumen sollen die Arbeitsgruppen ihre Experimente aufbauen und durchführen können. Die Experimente bleiben hier so lange aufgebaut, bis die Arbeit daran beendet ist. Die Gerätschaften für die Experimente sollen nicht aus Mitteln des Naturwissenschaftlichen Arbeitszentrums beschafft werden, sondern aus den Sammlungen der Schule oder von Sponsoren ausgeliehen werden. Der Zugang zu den Experimentierräumen hängt vom Gefährdungspotential der Experimente aber sicherlich auch von der Erfahrung damit ab.

Der Besprechungsraum soll allen Gruppen für Planungen, zur Analyse von Zwischenergebnissen und für die Gestaltung der Abschlußdokumentation zur Verfügung stehen. Hier wird auch die gesamte im Naturwissenschaftliches Arbeitszentrum vorhandene Literatur gesammelt.

Allgemeine Regeln für die Mitarbeit im Naturwissenschaftliches Arbeitszentrum

  • Jeder verhält sich im Naturwissenschaftlichen Arbeitszentrum so, daß andere bei der Arbeit weder behindert noch unangemessen gestört werden.
  • Wer Einrichtung und Gegenstände des Naturwissenschaftlichen Arbeitszentrums mutwillig oder fahrlässig zerstört oder beschädigt haftet als Verursacher für den eingetretenen Schaden.
  • Das Rauchen und das Trinken von Alkohol sind im Naturwissenschaftlichen Arbeitszentrum verboten.

Besondere Regeln für die Benutzung der einzelnen Räume:

·    Experimentierräume:

Nur die Schüler, die vorher ihre experimentellen Vorhaben mit einem Betreuungslehrer abgesprochen haben, dürfen in den Experimentierräumen bei Anwesenheit eines Betreuungslehrers experimentieren.

Ohne Absprache mit einem Lehrer darf nicht experimentiert werden.

Die Experimentierräume sind außerhalb der bekannten Öffnungszeiten verschlossen.

·    Küche:  

Die Küche ist nach der Benutzung in einem ordentlichen und sauberen Zustand zu hinterlassen. Zuwiderhandlungen werden mit Küchenverbot geahndet.

Lebensmittel dürfen nur beschriftet im Kühlschrank aufbewahrt werden (Name/Zeitpunkt), sonst werden die Lebensmittel entsorgt.

Benutzung der Küche für größere Aktivitäten muß abgesprochen werden.

·  Rechnerraum:  

Es dürfen nur vorhandene, lizensierte Programme benutzt werden.

Benutzer, die sich am allgemeinen Betriebssystem, am Netzbetriebssystem oder an den Rechnereinstellungen zu schaffen machen, werden zumindest zeitlich befristet aus dem Naturwissenschaftlichen Arbeitszentrum verwiesen.

Jeder bekommt sein eigenes Passwort und ist für die Geheimhaltung und einem eventuellen Mißbrauch  mit seinem Passwort selbst verantwortlich.

Für die Vergabe der Passworte, die Pflege der System- und Programmsoftware und die eventuell notwendige Veränderung der Hardware der Rechner sind ausschließlich die Netzwerkadministratoren zuständig.