Site hosted by Angelfire.com: Build your free website today!
A service of the Ansteorran Ordnance Survey Office

Gulf War Maps


Road Maps to Site Maps of Gulf War Site Link to Mapquest
Plans of Fort


Road Maps

    Road maps in HTML form from the Gulf War web site; click on the color-highlighted section to zoom in.     Show Map


Maps of the Event Site

    Official site map from the Gulf War web site.    Show Map

    Half-scale version of the same map.    Show Map

    Printable version of the map; this has been oriented so it will print out on two sheets.    Show Map


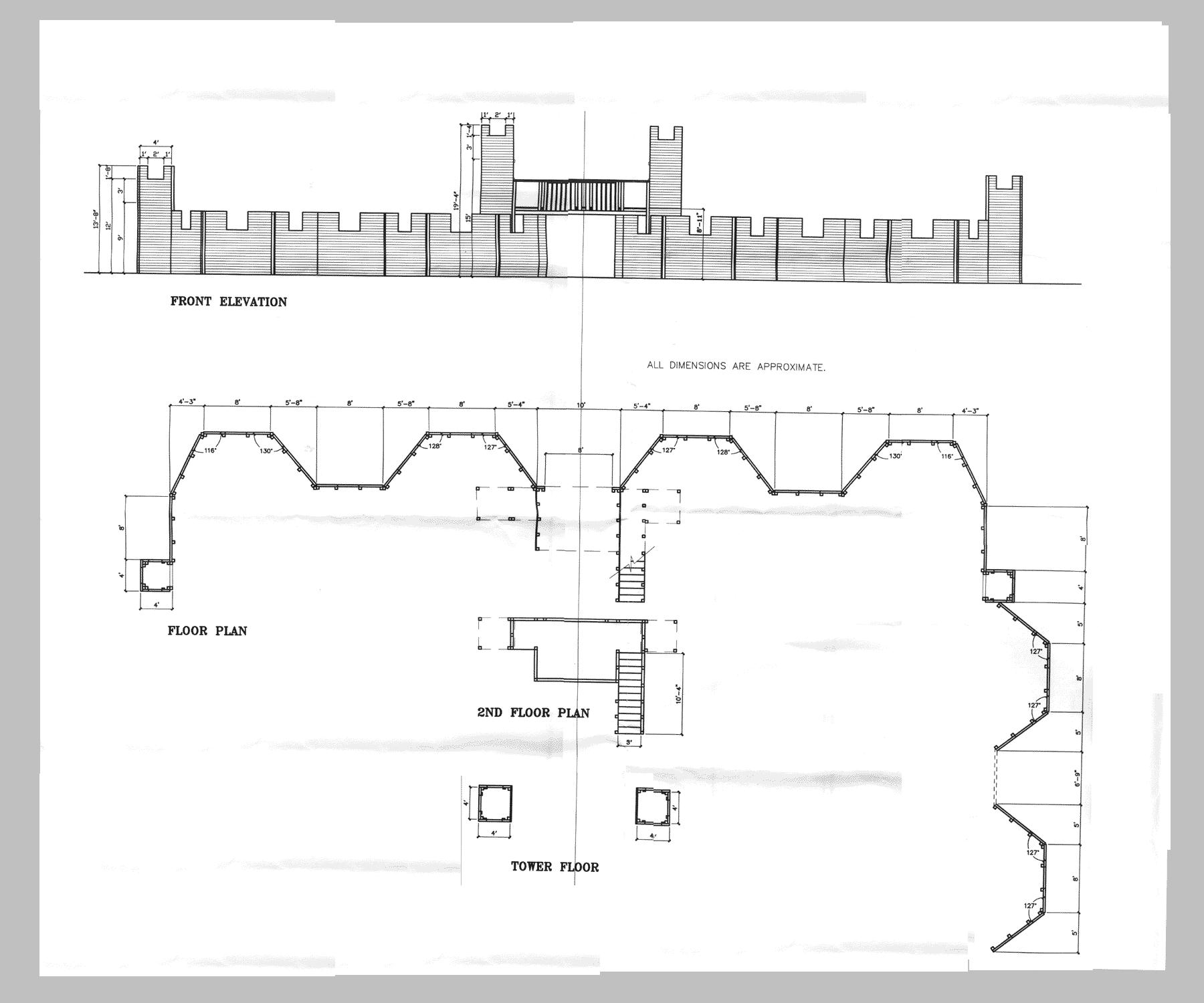
Architects' Plans of the Fort

The fort has been changed! There is now a section of wall that partially blocks the breach; refer to Bulletins for more information.

    Full-size plans (172KB).    Show plans

    Half-scale verion of the same image (58KB).    Show plans