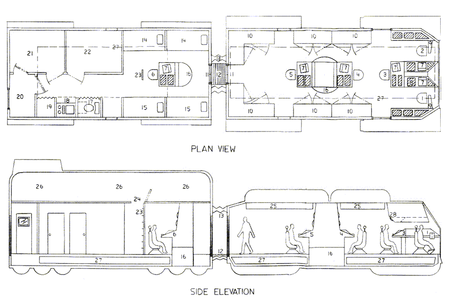
Internal Key
1 (1) Commander's Station
2 (1) Driver's Station
3 (1) Science Specialist's Station
4 (1) Science Specialist's Station
5 (1) Science Specialist's Station
6 (1) Doctor's Station
7 (6) Computer Console
8 (18) Ancilliary Consoles
9 (2) Steering Console (swings up)
10 (6) Storage Lockers
11 (2) Double Doors
12 (1) Catwalk
13 (1) Inner Shroud
14 (2) Medical Units
15 (6) Bunks (3 high)
16 (2) Fusion Reactors
17 (1) W/C & Shower
18 (1) Kitchen
19 (1) HAAM Suit Locker
20 (1) Airlock (Bio Containment & Decontamination Chamber)
21 (1) Bio/Physics Lab
22 (1) Electronics Lab/Machine Shop
23 (1) Ladder
24 (1) Access Hatch
25 (4) Ready Racks
26 (1) Storage
27 (2) Drivetrain
28 (1) Workstation Mainframe
