|
Diplomarbeit der 5CEE |
HTL Wels 2001/2002 |
|
3. Leistungsmessung |
3. Leistungsmessung
3.1. Leistungsmessung
Laut Professor Meyl sollte bei optimaler Abstimmung des Resonanzsystems ein Wirkungsgrad größer eins möglich sein. Meyl nennt dies einen "Over Unity Effekt".
Meyl nennt den Wirkungsgrad bewußt "Over Unity Effekt" da es ja kein Wirkungsgrad über eins ist, sondern nur "Freie Energie" eingesammelt wird.
Deshalb sahen wir uns gezwungen genaueste Leistungsmessungen an Sender und Empfänger durchzuführen. Auf Grund der Messergebisse konnten wir dann Rückschlüsse auf den Wirkungsgrad machen.
Es stellten sich etliche Problem ein, da bei diesen Frequenzen die kapazitive Komponente des Systems zur Erde schon eine sehr große Rolle spielt. Mehr zu diesen Problemen in den
3.2. Methoden der Leistungsmessung und Versuche zur Leistungsmessung
|
Abb. 3.2.-1: HF-Strommesszange im Einsatz |
Abb. 3.2.-2 |
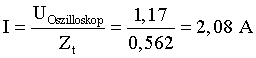
Um den Spannungswert, den das Oszilloskop anzeigt, in einen Strom umzuwandeln, benötigt man die Transitimpedanz Zt. Diesen Wert kann man, für die jeweilige Frequenz, bei der das Gerät benutzt wird, aus der Kennlinie der Strommesszange, die im Anhang abgedruckt ist, herauslesen.
Bei unserer Frequenz beträgt der Wert für Zt ca. 0,562W .
Der Stromwert wird wie folgt berechnet:

3.3. Leistungsübertragung bei verschiedenen Verbindungen
Einige Überlegungen zu Erdung des Systems brachten uns auf die Idee, die Auswirkungen von verschiedenen Leitern bzw. Nichtleitern als Verbindung der Spulen zu untersuchen. Natürlich setzten wir uns zuerst mit den Leitern auseinander. Der Aufbau mit einer Kupferleitung ist der ursprüngliche Aufbau. Mit ihr lassen sich einfach Ergebnisse erzielen.
Der wichtigste Versuch ist selbstverständlich die Übertragung mit Erdern. Er würde den praktischen Nutzen der Übertragung demonstrieren und endgültig Tesla und Prof. Dr.-Ing. K. Meyl rechtgeben!
3.3.1. Verbindungsleitung - Erdverbindung
Wirkungsgradmessung mit direkter Verbindungsleitung. Dieser Aufbau entspricht dem ursprünglichen, nachgebauten Versuch mit dem Demoset von Prof. Meyl.

3.3.1.1. Versuch mit den geklebten Spulen
Sender

Oszillogramm 70: Messung am Sender ohne Empfänger und Last
|
Spannung am Sender (CH2): |
Strom in den Sender (CH1): |
Phasenverschiebung: |
|
|
|
|
Leistung in den Sender:
![]()
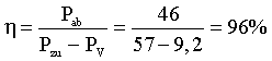
Prof. Meyl hat bei seiner Wirkungsgradmessungen (EMUV 2 S.188-191) die Leistung, die der Sender im Leerlauf aufnimmt, als Senderverluste bezeichnet und diese nicht berücksichtigt. Bei uns sind die Senderverluste im Wirkungsgrad enthalten. Wir sind uns nicht sicher, ob die aufgenommen Leistung des Senders wirklich Verluste darstellen. Deshalb haben wir die Wirkungsgrade nach der Formel

berechnet. Pzu ist die Leistung in den Sender, Pab die Leistung, die am Empfänger entnommen wird. Zum Vergleich werden wir aber auch ohne die Senderverluste den Wirkungsgrad berrechnen.
Um für jede Spannung am Sender auch die richtigen "Verluste" zu erhalten rechnen wir über die Leistung und die Spannung auf den Widerstand zurück:

b.) Sender mit Empfänger
Sender

Oszillogramm 60: Messung am Sender mit Empfänger und Last
|
Spannung am Sender (CH2): |
Strom in den Sender (CH1): |
Phasenverschiebung: |
|
|
|
|
Leistung in den Sender:
![]()
Empfänger

Oszillogramm 59: Messung am Empfänger
|
Spannung am Empfänger (CH1): |
Laststrom (CH2): |
Phasenverschiebung: |
|
|
|
|
Entnommene Leistung am Empfänger:
![]()
|
Wirkungsgrad |
Wirkungsgrad ohne Senderverluste |
|
|
|
3.3.1.2. Versuch mit gefrästen Spulen
Sender

Oszillogramm 96: Messung am Sender
|
Spannung am Sender (CH1): |
Strom in den Sender (CH2): |
Phasenverschiebung: |
|
|
|
|
Leistung in den Sender:
![]()
Empfänger

Oszillogramm 97: Messung am Empfänger
|
Spannung am Empfänger (CH1): |
Laststrom (CH2): |
Phasenverschiebung: |
|
|
|
|
Entnommene Leistung am Empfänger:
![]()
|
Wirkungsgrad |
Wirkungsgrad ohne Senderverluste |
|
|
|
|
|
Bei den gefrästen Spulen wurden beinahe die gleichen Senderverluste wie bei den geklebten festgestellt |
Die gefrästen Spulen besitzen bei weitem die besten Eigenschaften. Ihr Resonanzpunkt ist sehr scharf abgegrenzt und beim schnellen Durchfahren unseres Frequenzbereiches (0,2-1MHz) leicht zu übersehen. Ausserdem weisen sie unter allen gefertigten Spulen den besten Wirkungsgrad auf.
3.3.2. Wasserbecken
Der erste Gedanke an einen nichtmetalischen Leiter fällt auf Wasser. Da Wasser allein nicht sehr gut leitet, versuchten wir eine Übertragung durch eine kurze Strecke unter Salzwasser (3g Salz auf 1l Wasser). Außerdem verwendeten wir große Elektroden (siehe Abb. 3.3.2.-2 - Schraubenschlüssel).

Abb. 3.3.2.-1: Aufbau der Übertragung mit Wasser als Teil der Verbindungsleiter
|
Abb. 3.3.2.-2: Wasserübertragung |
Abb. 3.3.2.-3: Versuch mit Wasserbecken |
Abb. 3.3.2.-4.: Keine Einschränkungen! |
Zu unserer Verblüffung funktionierte die Strecke wie immer! Nicht einmal die Resonanzfrequenz hatte sich verschoben! Natürlich dachten wir kritisch an den sehr guten Widerstand dieses Aufbaus. Allein die Fläche der Elektroden war enorm. Um den Übergang etwas hochohmiger zu machen, klemmten wir die Schraubenschlüssel ab und hängten nur die Bananenstecker in das Salzwasser. Auch jetzt zeigte sich keinerlei Einfluß.
Als nächsten Versuch befüllten wir ein 50 x 35 cm großes Becken 2,5 cm hoch mit normalem Leitungswasser. Es wurde KEIN Salz hinzugefügt. Als Elektroden verwendeten wir wieder einfach ins Wasser getauchte Bananenstecker. Und wieder funktionierte der Aufbau wie zuvor! Als wir dann auch den Anschluß des 2. Empfängers einfach in der Mitte des Beckens ins Wasser tauchten, beobachteten wir den selben Effekt, als ob wir die Leitungen direkt verbunden hatten. (Für nähere Details siehe Punkt 3.4. Leistungsübertragung auf mehrere Empfänger)

Abb. 3.3.2.-5: Aufbau mit Wasserbecken und 2. Empfänger
3.3.3. "Wasserschlauch"
Unser Gedanke zu diesem Thema war, dass ein kurzes Stück der Verbindungsleitung durch ein Wasserbecken ersetzt werden könnte. Darum dachten wir uns, es müsste eigentlich auch mit einem wassergefüllten Schlauch mit Drahtelektroden an den Enden funktionieren.
Aber es konnte keine Leistungsübertragung realisiert werden.
3.3.4. Über Erde
Der Versuchsaufbau wurde genau so durchgeführt wie immer, nur versuchten wir die Erdleitung durch einen Staberder beim Sender und Empfänger zu ersetzen.
Wir stellten unsere Übertragungsstrecke im Freien, mit Autobatterien und Wechselrichtern versorgt, auf um vom Netz unabhängig zu sein. Dabei auch zu beachten, dass auch das Oszilloskop erdfrei sein muß, d.h. auch am Wechselrichter hängen muß. Allerdings sind das Leistungsmessgerät und das Amperemeter, für die Messung der aufgenommen Leistung, unnötig da sie nicht für Messung eines Rechteckes, der vom Wechselrichter geliefert wird, geeignet sind.

Abb.:3.3.5-1
Wir haben die Erdleitung völlig entfernt und die Übertragung über die Erde versucht, jedoch konnten wird keine wesentliche Leistung, bis auf die der hertz'schen Einstrahlung, feststellen. Der Erdungswiderstand war aber auf grund der kleinen Erder relativ hochohmig, nämlich 593 W .
Abb.:3.3.5-2
Dann versuchten wir noch die Verbindungsleitung wieder zu installieren und mit einem Erder am Sender zu Erden. Dies führte jedoch zu keiner merkbaren Verbesserung. Es wurde ein sehr schwaches Signal empfangen, welches wir aber für eine rein Hertz'sche Einstreuung vom Sender halten.
Empfänger

Oszillogramm 82: Signal aufgenommen am Empfänger, wenn Sender geerdet ist
|
Spannung am Empfänger (CH1): |
Laststrom (CH2): |
Phasenverschiebung: |
|
|
|
|
Entnommene Leistung am Empfänger:
![]()

Abb.:3.3.5-3
Außerdem versuchten wir noch den Empfänger mit einem Spieß zu erden(den Erder am Sender wieder entfernt). Hier konnten wir eine geringe Leistung am Empfänger messen. (3 Glühbirnen glimmten)
Empfänger

Oszillogramm 81: Signal aufgenommen am Empfänger, wenn Empfänger geerdet ist
|
Spannung am Empfänger (CH1): |
Laststrom (CH2): |
Phasenverschiebung: |
|
|
|
|
Entnommene Leistung am Empfänger:
![]()
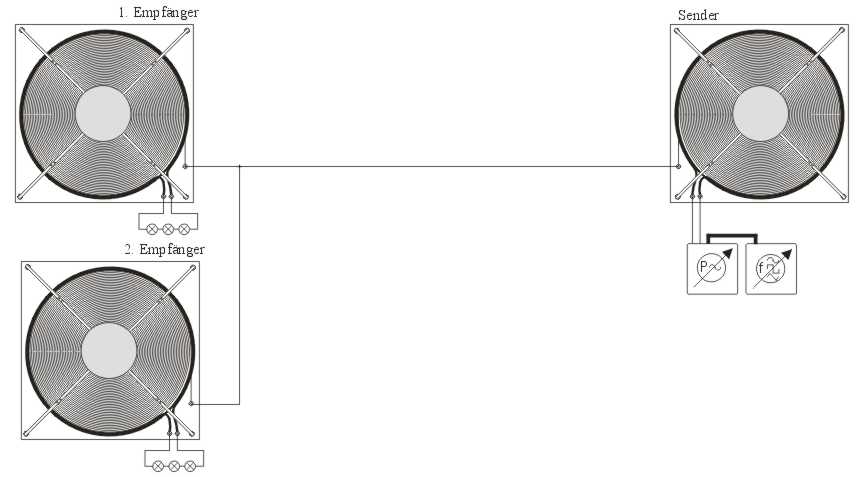
3.4. Leistungsübertragung auf mehrere Empfänger
Hierbei wollten wir die Energieverteilung auf mehrere Empfänger testen. Dazu bauten wir ein zweiten Empfänger und verbanden die Verbindungsleitungen. Es wurden die geklebten Spulen verwendet, die sich durch ihre Farbe unterscheiden (auf den Bildern zu sehen).

Abb. 3.4.-1: Aufbau des Versuchs mit zwei Empfänger
Wie in Punkt 3.3.2. Wasserbecken bereits erwähnt, kann die Verbindung auch über Wasser erfolgen. Der Übertragung tut dies keinen Abbruch.
Sender

Oszillogramm 78: Messung am Sender
|
Spannung am Sender (CH1): |
Strom in den Sender (CH2): |
Phasenverschiebung: |
|
|
|
|
Leistung in den Sender:
![]()
Empfänger 1 (grau)

Oszillogramm 79: Messung am 1. Empfänger
|
Spannung am Empfänger (CH1): |
Laststrom (CH2): |
Phasenverschiebung: |
|
|
|
|
Entnommene Leistung am Empfänger:
![]()
Empfänger 2 (grau)

Oszillogramm 80: Messung am 2. Empfänger
|
Spannung am Empfänger (CH1): |
Laststrom (CH2): |
Phasenverschiebung: |
|
|
|
|
Entnommene Leistung am Empfänger:
![]()
Gesamtwirkungsgrad des Aufbaus:

Die Leistungen verteilen sich aufgrund der nicht ganz genau abgestimmten Resonanzfrequenzen unsymmetrisch auf die beiden Empfänger. Je nach Resonanzpunkt wird erst an einem, dann am anderen Empfänger mehr Leistung abgegeben. Interessanter Weise ergibt sich aber beim Addieren der Empfängerleistungen der gleiche Wirkungsgrad wie beim Betrieb mit einem Empfänger.
3.5. Anspeisung mit Hochspannungstransformator und Funkenstrecken
Da Tesla bei seinen Versuchen mit Funkenstrecken und Hochspannungstransformatoren arbeitete wollten auch wir diese Möglichkeit der Anspeisung unter die Lupe nehmen. Die Aspekte der bereits eingangsseitig hohen Spannung und der Flankensteilheit des Eingangssignal lassen vielleicht bessere Ergebnisse erhoffen.
Die Übertragung von Energie funktionierte zwar, aber es stellte sich ein äußerst schlechter Wirkungsgrad ein. Grund dafür ist wahrscheinlich, dass der verwendete Funkenstreckengenerator ein sehr stark oberwellenbehaftetes Signal ausgibt. Der Empfänger ist aber auf eine bestimmte Resonazfrequenz abgestimmt und da der Sender eine sehr breitbandige "Dreckschleuder" ist, ist nur ein kleiner Teil der Oberwellen mit dem Empfänger in Resonanz und kann so empfangen werden.
3.5.1. Technische Daten:
|
Trafo: |
Ölheizungs-Zündtfafo mit Umax = 15 kV; I = 23 mA |
|
Kondensator: |
Zwei Flaschenkondensatoren mit je 1 nF |
|
Funkenstrecke: |
Abstand der Elektroden ca. 10 mm |
3.5.2. Aufbau der Strecke:

Abb. 3.5.2.-1: Aufbau mit Funkenstrecke
3.5.3. Beschreibung:
Durch den Hochspannungstransformator wird die Netzspannung auf ca. 6 bis 15kV hinauftransformiert. Der Primärkondensator, die Primärinduktivität und die Funkenstrecke bilden den Primärresonanzkreis. Während der ersten Halbwelle wird die Primärkapazität geladen. Schlägt nun die Funkenstrecke durch, gibt der Kondensator seine Energie in die Primärspule ab. Es bildet sich jetzt ein Schwingkreis, der genau auf der Resonanzfrequenz schwingt. Dieser Vorgang wiederholt sich ca. 100 mal in der Sekunde (100 Hz).