Site hosted by Angelfire.com: Build your free website today!
Moonroof Switch Schematic Page

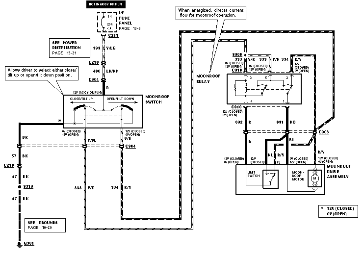
At the Switch, (left side of the drawing) the red wire is hot(+) supply, the black wire is ground(-) supply, and the yellow/blue stripe and yellow/red stripe wires are for the motor. At the switch, I attached the hot supply(+) the the center pin, with the ground supply(-) to both the upper left and lower right pins, as viewed from the rear of the console (side opposite where the lights are located). The yellow/red got the upper right post, the yellow/blue the lower left post. This provided for motion matching the oem switch. To get opposite motion (push forward on switch and moonroof closes from vent position, or disappears under the roof), switch either the two power wires or the two motor wires. Be sure that whichever of the two power wires is NOT on the center post gets connected to both the opposite corner posts.