My House
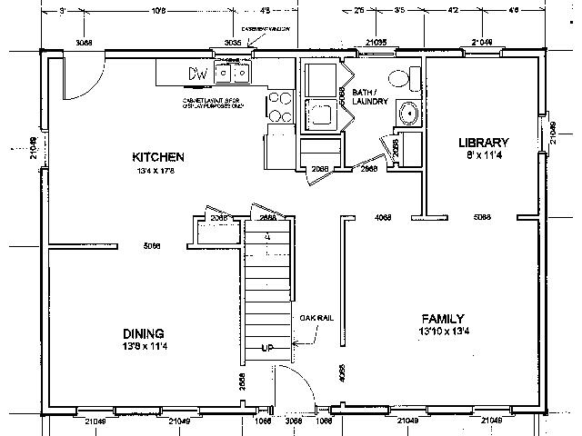
We built our house, so we were able to have input on every decision that goes into the process. For the floor plans, I actually drew up the plans myself, and the architect worked off my sketches.

What the house looks like from the front.
There is a garage in the basement that opens on the right side of the house

Floor Plans -- First Floor

Floor Plans -- Second Floor
